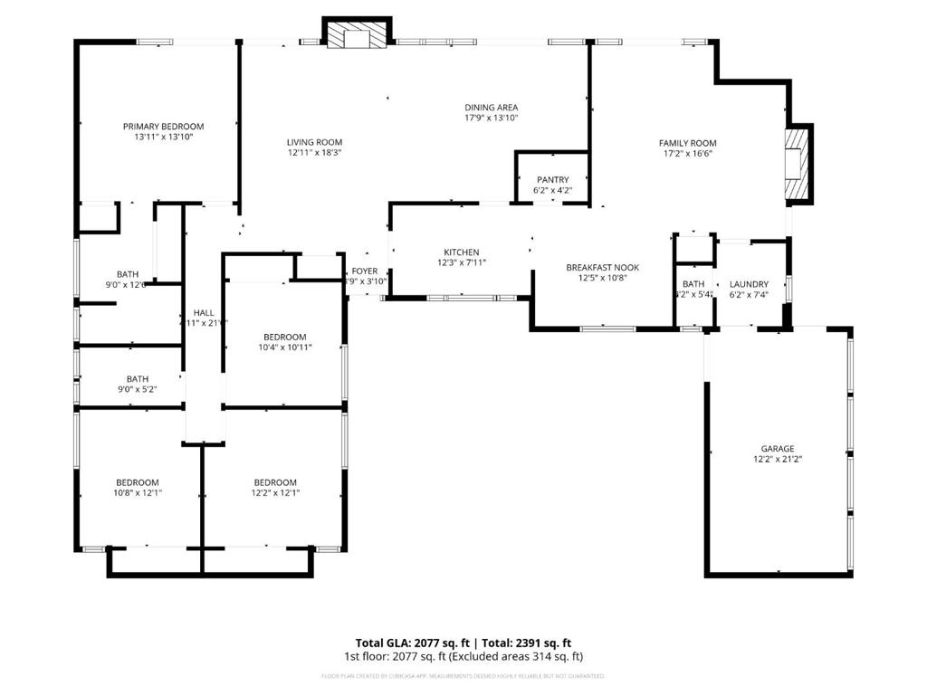
Located on a quaint cul-de-sac and newly renovated throughout, this stunning Eichler home offers a modern take on classic mid-century living. Step into the light-filled living and dining space, with original wood burning brick fireplace flanked by floor-to-ceiling panels of glass, illuminating the open floor plan. The contemporary kitchen features new European style flat panel wood cabinetry, Quartz countertops, new appliances, globe lighting, walk-in pantry and an informal eating area with matching built-in cabinetry. A separate family room with fireplace offers ample space for comfortable living. In addition, there is a utility room with laundry and half bath. The primary suite has its own slider to the backyard and remodeled bath with terrazzo style tile shower and double vanity with Quartz countertops. There are three other well appointed bedrooms, sharing a hall bath with new ceramic tile, tub, wood vanity and fixtures. Enjoy radiant heated floors throughout with luxury vinyl plank flooring. Finished + heated one car garage, great for office or gym. Spacious yards wrap around the property, with mature landscaping and trees, brick pathways and a large side yard. Just blocks to Mitchell Park, Greenmeadow Pool and Community Center, shopping and top-rated Palo Alto schools.
Compare listings
Compare