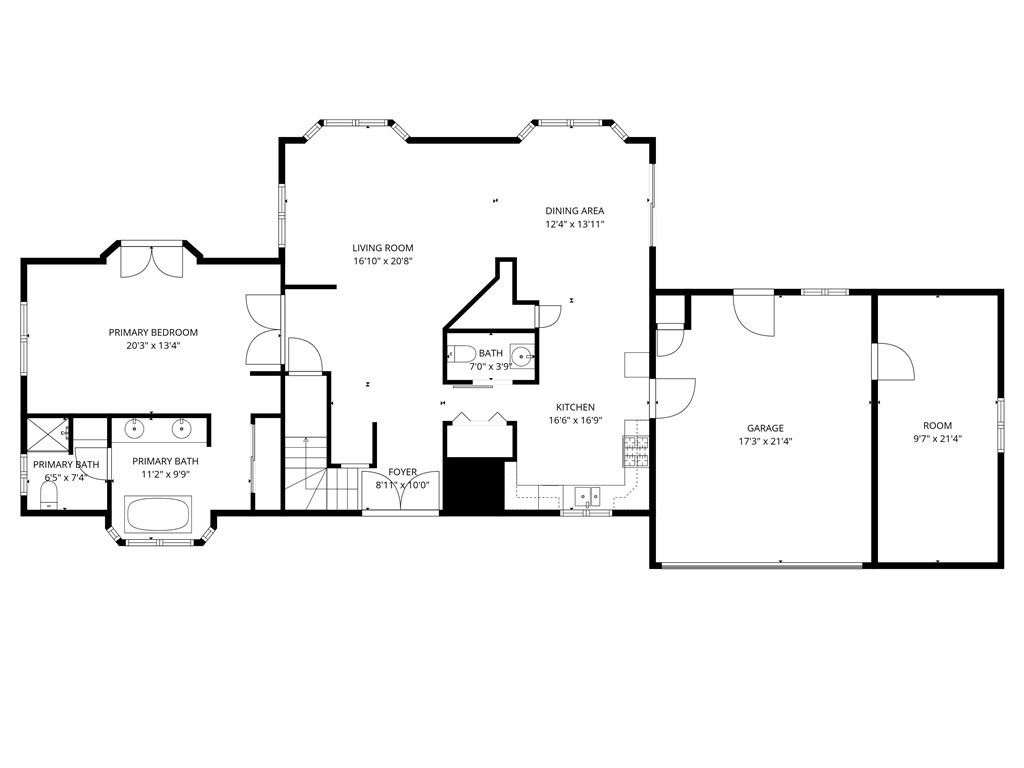
Perched in the scenic hills of West Atascadero, this inviting 4 bedroom, 2.5 bathroom home offers 2202 sf of comfortable living space on ~ 4.3 acres, combining peaceful country living with breathtaking views. The versatile floor plan welcomes you with beautiful new vinyl plank flooring that flows throughout the main level, while an abundance of windows captures the surrounding hillside scenery and fills the home with natural light. The living room showcases stylish shiplap walls and transitions seamlessly into the dining area and kitchen, creating a warm and functional space for everyday living and entertaining. The main level primary suite is a true retreat, featuring vinyl plank flooring and a charming French door that opens to sweeping views. The ensuite bathroom is a standout with its stunning clawfoot tub and separate shower, offering a relaxing place to unwind. Upstairs, three guest bedrooms provide comfortable accommodations, each enjoying impressive views of the surrounding landscape. A bonus room attached to the garage adds flexibility and would make an ideal home office, exercise room or hobby space. Step outside to an expansive patio designed to take full advantage of the beautiful setting—perfect for entertaining, relaxing and enjoying the fresh Central Coast air. On the side of the property, a small barn with an attached fenced pasture offers great potential for a 4-H project or other small animals. Located in the desirable hills of West Atascadero, this property offers a peaceful and private setting that truly feels like a retreat, while still being just a short drive from town. Please review the Virtual Tour for additional information.
Compare listings
Compare