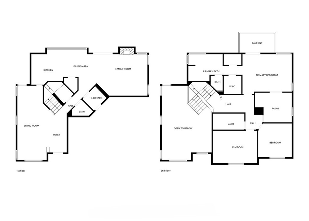
Fantastic 2 story home located in prestigious neighborhood. Manicured corner lot featuring 4 bedrooms and 3 bathrooms. Tile entry into vaulted ceilings, dual paned and peek-a-boo windows for tons of natural light. Formal living and dining room highlighting crown mold leads into the butler’s pantry and an open kitchen featuring gorgeous greenhouse window out to the private, low maintenance back yard. Walk in pantry and granite counter tops. Family room boasts beautiful stone fireplace and crown molding. Head upstairs to 4 good sized bedrooms, including the primary bedroom with French doors with shutters to the outdoor balcony. His and Hers Walk-In Closets, His and Hers sinks and separate tub and shower. Upstairs hall storage with built in cabinets. Downstairs laundry room leads out to the 3-car garage with built in cabinets, shelving and work bench. Newer Furnace and AC. Leased Solar. No HOA! Located on a quiet cul-de-sac and ready to welcome you home!
Compare listings
Compare